Verhuurd

Plaza 25A

Moerdijk

Bedrijfsruimte

Verhuurd

EUR 61.000,- per jaar

neem contact op

Vrijstaand bedrijfsobject | ‘Port of Moerdijk’

Namens onze opdrachtgever bieden wij per 1 oktober 2025 een volledig gerenoveerd bedrijfsobject op bedrijventerrein ‘Port of Moerdijk’ aan.

Moerdijk ligt tussen de zeehavens Rotterdam en Antwerpen en heeft multimodale faciliteiten over land, spoor en water. Het bedrijventerrein wordt gekenmerkt door een diversiteit aan activiteiten op het gebied van productie, handel en logistiek.

Het bedrijfsobject is geschikt voor  lichte bedrijvigheid tot en met milde activiteiten (categorie 3.). De bedrijfsruimte kan worden gebruikt voor de opslag en overflow van goederen en lichte productie- of assemblagewerkzaamheden, in combinatie met kantoorruimte.

Het perceel is volledig omheind en voorzien van een toegangspoort en voorziet in de mogelijkheid voor parkeren en laden en lossen.

Bent u op zoek naar zelfstandig bedrijfsobject met de mogelijkheid voor eigen identiteit, dan nodigen wij u graag uit voor een vrijblijvende bezichtiging.

Bereikbaarheid

Per auto
Het bedrijfsobject ligt op circa 300 meter afstand van de op- en afrit A17 (Roosendaal – Moerdijk) en op zeer korte afstand van de A16 (Antwerpen-Breda) en de A58 (Bergen op Zoom- Tilburg – Eindhoven).

Per OV
Direct voor het object ligt een bushalte ten behoeve van het streekvervoer. Ook is er een busverbinding met het NS-Station van Lage Zwaluwe.

Locatie

Bedrijventerrein Moerdijk ligt strategisch tussen de havens van Rotterdam en Antwerpen. Het terrein beschikt over uitstekende multimodale voorzieningen door de aanwezigheid van zowel zee als binnenvaarthavens, spooraansluiting en twee directe aansluitingen op het rijkswegennet. Moerdijk kenmerkt zich verder door een verscheidenheid aan bedrijfsactiviteiten, een ruime opzet van het bedrijvenpark en goede gezamenlijke voorzieningen, waaronder beveiliging.

Bedrijventerrein Moerdijk beschikt over een containerterminal. Deze ligt op steenworp afstand van het onderhavige bedrijfsobject waardoor toevoer van containers op een snelle een eenvoudige wijze
mogelijk is.

Voor meer informatie of het inplannen van een bezichtiging van dit bedrijfsobject, aarzelt u niet contact met ons op te nemen.

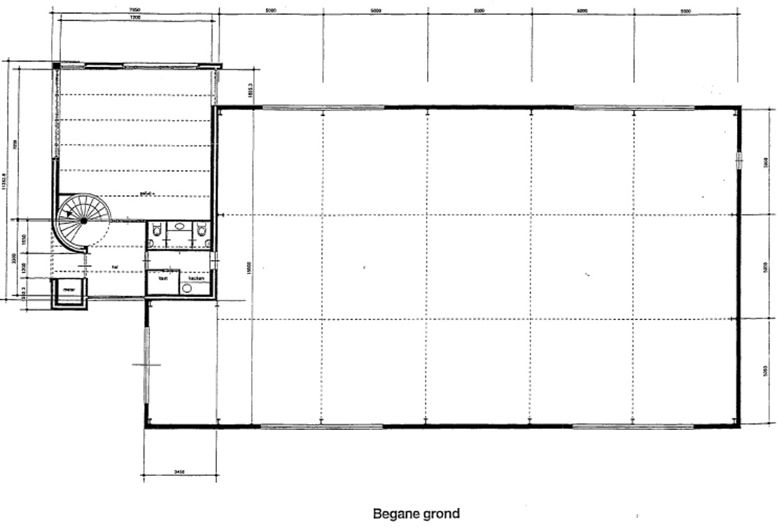
Oppervlakte

  • De totaal verhuurbare oppervlakte van de beschikbare ruimte bedraagt ca. 589 m ². Dit metrage is als volgt verdeeld:
  • Bedrijfsruimte
    Ca. 351 m²
  • Entresol
    Ca. 52 m²
  • Facilitaire ruimte
    Ca. 44 m²
  • Kantoor
    Ca. 142 m²

Parkeren

  • Op eigen terrein zijn 6 gemarkeerde parkeerplaatsen beschikbaar. Aan de linkerzijde van het object is het mogelijk om, indien gewenst, extra parkeerplaatsen te realiseren.

Bestemming

  • Binnen het actuele bestemmingsplan ‘Zeehaven- en industrieterrein Moerdijk’ kent het pand de bestemming ‘Bedrijf-Voorzieningencentrum’ en dubbelbestemming ‘Waterstaat - Waterkering, deze bestemming biedt ruimte aan bedrijven tot en met milieucategorie 3.

Opleveringsniveau

  • Bedrijfsruimte
  • vrije hoogte 6 m1
    verwarming middels gasheaters
  • gladde betonvloer
    daglichttoetreding
  • elektrisch bedienbare overheaddeur
    elektra aansluitingen.
  • ledverlichting
  • Kantoorruimte
  • ruime entree
    kantine;
  • LED verlichting
    voldoende data aansluitingen in alle kantoren;
  • airco units
    systeemplafonds
  • verwarming middels CV met radiatoren
    douche
  • pantry op de begane grond
    sanitaire voorzieningen
  • Buitenruimte
  • deels verhard met klinkers, deels met stelcon platen
    1 schuifpoort
  • hekwerk

Overige condities

  • Energielabel
    B
  • Leveringen en diensten
    voorschotbedrag servicekosten EUR 250,- per maand
  • Metrages
    genoemde metrages zijn vastgesteld conform de aanwezige plattegronden
  • Huurprijsaanpassing
    jaarlijks
  • Huurtermijn
    5 + 5 jaar
  • Opzegtermijn
    12 maanden
  • Betalingen
    huur, evt. servicekosten en BTW per kwartaal vooruit
  • Zekerheidsstelling
    bankgarantie ter grootte van 3 maanden huur, evt. servicekosten en BTW
  • Overig
    huurovereenkomst op basis standaard ROZ model
  • Aanvaarding
    per direct

Plaza 25A

Moerdijk