Te huur

Hermelijnweg 7

Etten-Leur

Bedrijfsruimte, Logistiek

Huur

EUR 700.000,- per jaar

neem contact op

Solitair logistiek bedrijfscomplex | Vosdonk Etten-Leur

Te huur solitair logistiek bedrijfscomplex gelegen aan de Hermelijnweg 7  te Etten-Leur.

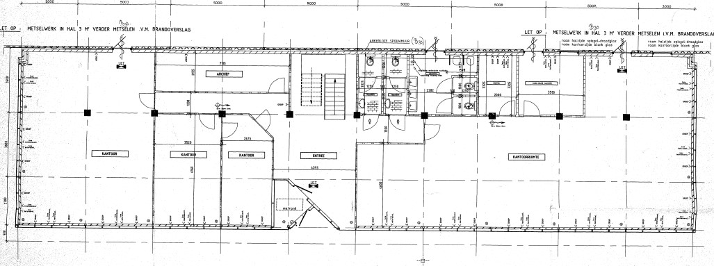
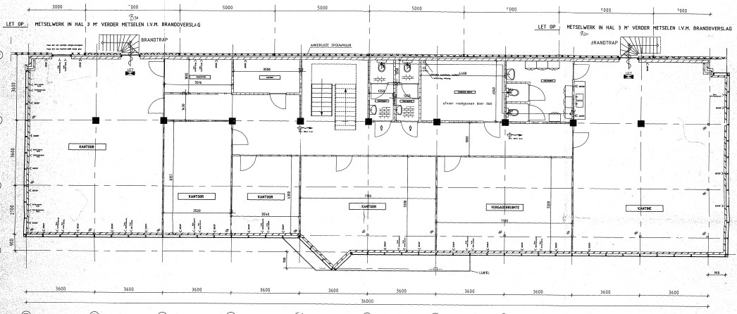
Het complex omvat in totaal circa 8.931 m², bestaande  uit circa 8.245 m² bedrijfsruimte en circa 686 m² kantoorruimte. Aan de voorzijde bevinden zich 24 parkeerplaatsen. Het object is gelegen op een ruim en verhard perceel van circa 15.480 m².

Het logistiek object is gelegen op bedrijvenpark Vosdonk, op korte afstand van de op- en afrit van de rijksweg A58 (Bergen op Zoom – Breda) met een directe verbinding naar de rijkswegen A17 (Moerdijk – Roosendaal) en A16 (Rotterdam – Antwerpen).

De bedrijfsruimte voorziet in gebruiksmogelijkheden van lichte bedrijvigheid tot en met zwaardere bedrijfsactiviteiten (categorie 4.1.). De bedrijfsruimte is uitermate geschikt voor opslag en overflow van goederen en productie- of assemblage werkzaamheden, in combinatie met kantoorruimte.

Het logistiek object is per 1 augustus 2026 beschikbaar. Benieuwd naar de mogelijkheden?

Graag plannen wij met u een afspraak in op locatie voor een nadere kennismaking en toelichting ten aanzien van de mogelijkheden.

Locatie

Het object is gelegen op bedrijventerrein ‘Vosdonk’ ten westen van Etten-Leur. Het bedrijventerrein biedt ruimte aan een grote diversiteit aan bedrijven, variërend van productie, transport/logistiek, bouwnijverheid en zakelijke dienstverlening.  Dankzij deze veelzijdigheid is het een aantrekkelijke vestigingslocatie voor zowel kleine, middelgrote als grote ondernemingen die actief zijn in uiteenlopende sectoren.

Het bedrijventerrein heeft een oppervlakte van circa 350 hectare en is de thuisbasis voor circa 350 bedrijven. Tezamen goed voor ruim 9.000 arbeidsplaatsen. Gerenommeerde ondernemingen hebben zich hier gevestigd, o.a. Lidl, Raben, Flowserve, Thetford, MJ-Tech, Saint-Gobain, Kompak en Vadelo.

Tot slot is ‘Vosdonk’ gelegen nabij meerdere woonwijken van Etten-Leur, Hoeven en Sint Willebrord, hetgeen een zeer groot arbeidspotentieel met zich meebrengt!

Per auto

Het logistiek object ligt op korte afstand van de op- en afrit van de rijksweg A58 (Bergen op Zoom – Breda) met een directe verbinding naar de rijkswegen A17 (Moerdijk – Roosendaal) en A16 (Rotterdam – Antwerpen).

Per OV

Aan de Nijverheidsweg, op circa 1.000 meter loopafstand, bevindt zich een bushalte ten behoeve van het streekvervoer.

Oppervlakte

  • De verhuurbare oppervlakte, conform NEN2580, van het complex bedraagt ca. 8.931.m² en is als volgt onderverdeeld:
  • Bedrijfsruimte
    ca. 8.245 m²
  • Kantoorruimte
    ca. 686 m²

Voorzieningen

  • Bedrijfsruimte
  • vrije hoogte variërend van 5,5 m1 tot 14,5 m1
    ledverlichting
  • gladde betonvloer
    vier loading docks
  • lichtstraten
    vier overheaddeuren op maaiveldniveau
  • gasheaters
    sprinklerinstallatie
  • De aanwezige racking wordt “om niet” aan huurder ter beschikking gesteld.
  • Kantoorruimte
  • nette vloerafwerking
    sanitaire voorzieningen
  • systeemplafonds
    pantry
  • verlichtingsarmaturen (LED)
    kabelgoten met stopcontacten en ruimte voor het aanbrengen van databekabeling

Overige condities

  • Leveringen en diensten
    nader te bepalen
  • Metrages
    genoemd metrage is vastgesteld aan de hand van NEN2580 meetrapport.
  • Huurprijsaanpassing
    jaarlijks
  • Huurtermijn
    5 + 5 jaar
  • Opzegtermijn
    12 maanden
  • Betalingen
    huur, evt. servicekosten en BTW per kwartaal vooruit
  • Zekerheidsstelling
    bankgarantie ter grootte van 3 maanden huur, evt. servicekosten en BTW
  • Overig
    huurovereenkomst op basis standaard ROZ model
  • Aanvaarding
    1 augustus 2026

Hermelijnweg 7

Etten-Leur