Last Mile Delivery bedrijfsruimte| Breda
Bedrijfsruimte aan de Takkebijsters 51 in Breda op bedrijventerrein ‘Moleneind’ aan de noordzijde van Breda.
Het bedrijventerrein wordt direct ontsloten door de noordelijke rondweg die in verbinding staat met de rijksweg A27 en ligt op korte afstand van de rijkswegen A16 en A58. De locatie leent zich uitstekend voor last mile delivery.
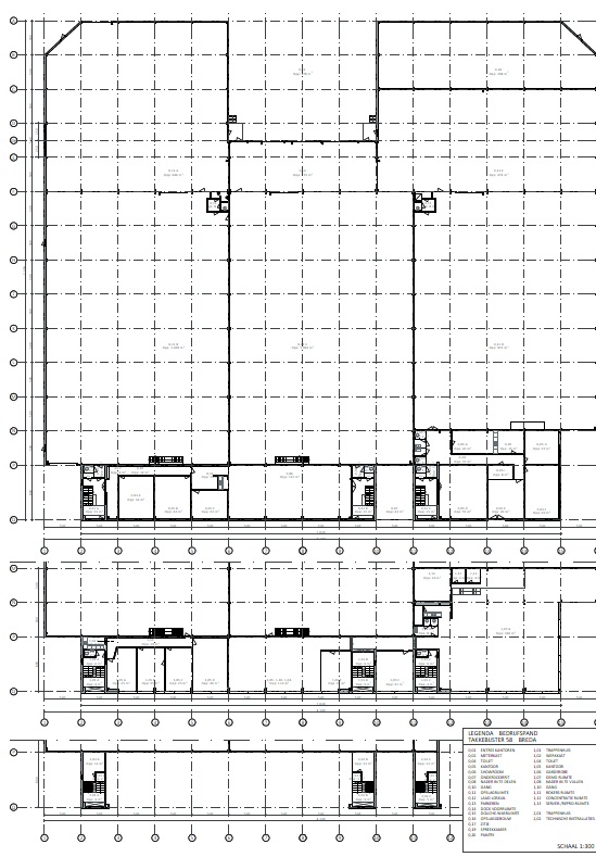
Het gebouw betreft een bedrijfsruimte bestaande uit vijf compartimenten met kantoorruimte, verdeeld over twee bouwlagen aan de voorzijde.
De bedrijfsruimte voorziet in gebruiksmogelijkheden van lichte bedrijvigheid tot en met zwaardere bedrijfsactiviteiten (categorie 3). De bedrijfsruimte is uitermate geschikt voor de opslag en overflow van goederen alsmede lichte productie- of assemblagewerkzaamheden, in combinatie met kantoorruimte.
Het complex omvat in totaal circa 4.800 m², bestaande uit circa 4.563 m² bedrijfsruimte en 280 m² kantoorruimte gelegen op de begane grond. Rondom het gebouw bevinden zich 40 gemarkeerde parkplaatsen.
Bereikbaarheid
Per auto
Het object ligt op circa 700 meter afstand van de op- en afrit A27 (Breda – Utrecht), en op zeer korte afstand van de A16 (Antwerpen-Breda) en de A58 (Bergen op Zoom- Tilburg – Eindhoven). Daarnaast is het object zowel via lokale verbindingswegen als via het centrum van Breda eenvoudig te bereiken.
Per OV
Op loopafstand bevinden zich bushalten ten behoeve van het streekvervoer.
Locatie
De bedrijfsruimte is gelegen op de bedrijventerrein ‘Moleneind’, aan de noordzijde van Breda en wordt direct ontsloten door de noordelijke rondweg en de snelweg A27. Het bedrijventerrein laat zich verder kenmerken door een mix van kantoren, bedrijven, een bouwmarkt en een sportschool. Door diverse eigenaren wordt geïnvesteerd in gebouwen en de omgeving waardoor sprake is van een levendig bedrijventerrein. Verder is ‘Moleneind’ gelegen nabij meerdere woonwijken en het centrum van Breda hetgeen een zeer groot arbeidspotentieel met zich meebrengt!
Wilt u meer informatie of een bezichtiging inplannen, aarzel niet contact met ons op te nemen.
Oppervlakte
- 
                                            De totaal verhuurbare oppervlakte van de beschikbare ruimte bedraagt ca. 4.843 m ², als volgt verdeeld:
 - 
                                            BedrijfsruimteCa. 4.563 m²
 - 
                                            KantoorCa. 280 m²
 - 
                                            Te huur vanaf 1.695 m2 tot circa 4.563 m2
 
Opleveringsniveau
- 
                                            Bedrijfsruimte
 - 
                                            vrije hoogte 8,5 m1LED-verlichtingsarmaturen
 - 
                                            betonvloerdirect gestookte gasheaters
 - 
                                            vloerbelasting van 2.500 kg/m²krachtstroomaansluitingen
 - 
                                            twee elektrisch bedienbare overheaddeurenmeerdere lichtstraten
 - 
                                            3 loading docks voorzien van levellers
 - 
                                            
 - 
                                            Kantoorruimte
 - 
                                            hoofdentree met trapopgang naar verdiepingdiverse (demontabele) scheidingswanden
 - 
                                            diverse kantoor- en spreekkamers, naar wens in te richtendiverse ruimten voorzien van airconditioning
 - 
                                            systeemplafonds v.v. LED-verlichtingsarmaturenpantry per verdieping
 - 
                                            vloerafwerkingsanitaire voorzieningen
 
Overige condities
- 
                                            Leveringen en dienstennader te bepalen
 - 
                                            Huurprijsaanpassingjaarlijks volgens CPI-Alle Huishoudens (2015=100)
 - 
                                            Opzegtermijn12 maanden
 - 
                                            Betalingenhuur, servicekosten en BTW per kwartaal vooruit
 - 
                                            Zekerheidsstellingbankgarantie ter grootte van 3 maanden huur, servicekosten en BTW
 - 
                                            Overighuurovereenkomst op basis van standaardmodel ROZ
 - 
                                            Aanvaardingper 1 november 2025